• About
  • Work
  • Contact
Obi Okoye
  • About
  • Work
  • Contact

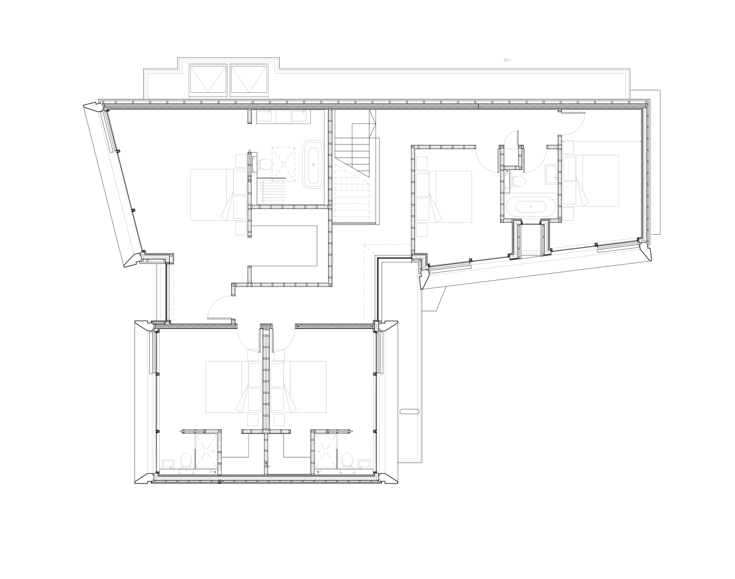
Hilltop House

/ New build timber framed 5-bedroom house

Coupdeville | London, UK | 2016

The scheme was conceived as two stacked, offset, L-shaped tapering volumes. Their interplay creates dynamic cantilevers and setbacks on the upper floor, emphasised by the contrast of external finishes of light render and dark porcelain. Large projecting glazed openings overlook the courtyard and garden; these are boldly framed with pressed metal and louvred in red cedar.

0553-Simon-Kennedy-CDV-Brunswick-Hilltop-Hi-108.jpg
0553-Simon-Kennedy-CDV-Brunswick-Hilltop-Hi-118.jpg
0553-Simon-Kennedy-CDV-Brunswick-Hilltop-Hi-124.jpg
0553-Simon-Kennedy-CDV-Brunswick-Hilltop-Hi-074.jpg
0553-Simon-Kennedy-CDV-Brunswick-Hilltop-Hi-066.jpg
0553-Simon-Kennedy-CDV-Brunswick-Hilltop-Hi-112.jpg
0553-Simon-Kennedy-CDV-Brunswick-Hilltop-Hi-092.jpg
0553-Simon-Kennedy-CDV-Brunswick-Hilltop-Hi-085.jpg
0553-Simon-Kennedy-CDV-Brunswick-Hilltop-Hi-094.jpg
0553-Simon-Kennedy-CDV-Brunswick-Hilltop-Hi-093.jpg
HILLTOP-HOUSE-06OCT2014-(A2)-C02_1F-Plan_redacted.png
HILLTOP-HOUSE-06OCT2014-(A2)-C12-Feature-Window-Details-2_redacted.png
HILLTOP-HOUSE-06OCT2014-(A4)-C108_redacted.png

Powered by Squarespace.